Kẹp cửa kính là phụ kiện cửa kính cường lực hay còn được gọi là kính thủy lực được sử dụng cho cửa kính bản lề sàn. Thông thường mỗi bản lề sàn sẽ tương ứng với bản lề kẹp tương đồng tạo thành bộ phụ kiện đồng điệu. Bản lề kẹp cửa kính có 5 loại kẹp chính và một số loại kẹp kính được sử dụng làm bộ phận hỗ trợ thêm cho thiết kế các loại cửa đặc biệt.

Chất liệu cửa kẹp cửa kính cường lực dành cho kính dày 8mm -10mm – 12 mm có thân kẹp làm từ kim thép và gang. Trong khi đó, nắp kẹp lại được chế tạo bằng inox và có chống rỉ sét mang lại độ bền, đẹp cao cho sản phẩm. Kẹp cửa kính bản lề sàn loại này thường được sử dụng cho loại cửa có trọng tải từ 75kg đến 180 kg mang lại ưu điểm kín khít và hạn chế được hiện tượng kính bị trầy.

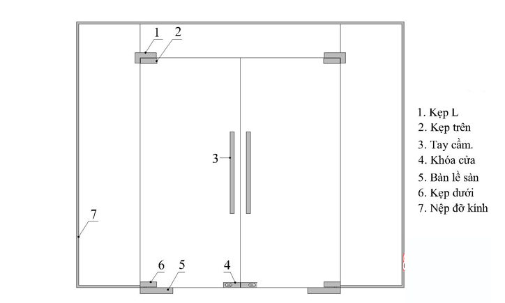
Kẹp dưới cửa kính.
Kẹp dưới cửa kính được thiết kế theo hình dạng hình hộp chữ nhật. Đây là phụ kiện được sử dụng để kế nối với bản lề sàn và kẹp cửa kính gốc dưới nhằm hạn chế trầy xước kính. Kẹp dưới cửa kính được liên kết với bản lề sàn bằng cốt inox hõm vào thành khe hình chữ nhật. Đồng thời, kẹp còn được thiết kế sao cho vừa khít với cốt sàn nhằm tạo thành trục xoay dưới.
Kẹp đỉnh cửa kính
Kẹp đỉnh cửa kính cũng được thiết kế với cùng kích thước của kẹp dưới và kết nối vừa khít với cốt lõm tròn kẹp trên nhằm tạo trục xoay trơn tru cho cánh cửa, hạn chế cửa bị lệch hay bị ăn mòn.
Kẹp trên cửa kính
Kẹp trên cửa kính thủy lực có cùng kích thước với kẹp dưới nhằm hỗ trợ cửa đóng mở được thuận tiện. Kẹp trên cửa kính thủy lự là phụ kiện liên kết với cốt AT/ ngỗng hoặc kẹp đỉnh, kẹp ty, kẹp góc L (tùy thuộc vào loại hình cửa được lắp đặt).Kẹp góc L cửa kính
Kẹp được thiết kế với hình dạng chữ L được bắt vào hai tấm kính chết và liên kết với kẹp trên. Kẹp góc L cửa kính được thiết kế lớn hơn kẹp đỉnh, kẹp trên, kẹp dưới nhằm đảm bảo cố định và cân bằng kính được tốt nhất.
Kẹp khóa cửa kính
Kẹp khóa cửa được thiết kế theo kiểu hình hộp chữ nhật như kẹp trên dưới và kẹp đỉnh nhưng có kích thước lớn hơn. Kẹp khóa thường được gắn ở góc dưới còn lại của cửa kính. Kẹp khóa kết hợp với hệ thống khóa thông minh dưới nền sàn nhằm bảo vệ an toàn cho căn phòng, ngôi nhà. Thông qua bài viết, hy vọng
Quý khách hàng đã có thêm thông tin về kẹp cửa kính cường lực được ứng dụng trong cửa kính cường lực bản lề sàn.
Công Ty TNHH SX & TM TÍN THÀNH
VPGD : 605(2) Hoàng Quốc Việt,P Nghĩa Tân - Q Cầu Giấy - Hà Nội.
Cơ sở 2 : 956 - Trần Nhân Tông - Q Kiến An - Tp Hải Phòng
Hotline ; 0977.295.577 0902.012.911
Kính sử dụng trong vách ngăn văn phòng có nhiều lọai kính, độ dày từ 5ly – 19 ly, nhưng chủ yếu và hầu hết là làm bằng vách kính cường lực 10 12ly, với độ dày là an toàn và vừa với túi tiền so với vật liệu làm xây dựng, chúng ta sử dụng vách kính cường lực làm vách ngăn văn phòng, cửa hàng, siêu thị, nhà hàng, khách sạn, showroom vv
Vách kính cường lực văn phòng đang được sử dụng rộng rãi tại những nơi làm việc. Sự góp mặt của vách kính cường lực mang đến một không gian sang trọng, thoải mái cho cho nhân viên.
Vách kính văn phòng là một sự lựa chọn tuyệt vời giúp bạn tiết kiệm không gian văn phòng. Làm cho văn phòng trở nên hiện đại và lịch sự hơn. Tạo ấn tượng tốt cho đối tác và khách hàng tới thăm văn phòng. Ngoài ra, với bố cục bài trí hợp lý sẽ giúp cho tinh thần làm việc của nhân viên thoải mái nhất.
Diện tích sử dụng văn phòng thường không có nhiều và phải tận dụng hợp lý từng khoảng trống. Sử dụng vách ngăn hợp lý sẽ giúp cho văn phòng tạo được một không gian hiện đại, lịch sự và năng động. Một giải pháp tối ưu được đưa ra đó là vách kính văn phòng.
Thi công lắp đặt vách kính cường lực, vách ngăn phòng bằng kính, vách kính phòng họp, phòng khách, báo giá vách kính cường lực khung nhôm, vách kính cường lực mặt tiền, vách kính cường lực nhà tắm, nhà vách kính cường lực
Vách kính cường lực đang ngày càng nhanh chóng trở nên phổ biến trong rất nhiều công trình xây dựng và nội thất. Vách ngăn kính tô điểm tạo nét sang trọng mà nhẹ nhàng, năng động cho không gian nội thất hiện đại, đồng thời dễ bài trí với các đồ nội thất, rất linh hoạt, gọn nhẹ trong sử dụng và lắp ráp và đặc biệt tạo cảm giác rộng mở về không gian cho bạn, đưa bạn về gần với thiên nhiên hơn.
Với xu hướng thiết kế không gian nhà ở hiện nay, hầu như các gia chủ đều ưa chuộng không gian mở nhằm mang lại sự ấm cúng, rộng rãi, thoáng mát, che lấp đi khuyết điểm như hạn chế về diện tích. Phòng khách và bếp tuy là hai không gian tách biệt nhau nhưng nếu sử dụng vách kính cường lực ta sẽ thấy được sự tương quan, làm căn nhà thêm phong phú, đẹp mắt hơn rất nhiều.
Với diện tích sử dụng giới hạn, phòng khách và phòng bếp trong các căn hộ chung cư thường được bố trí trong cùng một không gian. Để mang lại sự tinh tế trong thiết kế cũng như trang trí, kiến trúc sư đã khéo léo lựa chọn vách kính cường lực để tách biệt giữa hai khu vục trên mà vẫn không làm bố cục của căn phòng.
Mẫu thiết kế phòng khách và phòng bếp thông nhau đang rất được ưa chuộng bởi nó thích hợp cho diện tích hẹp mở ra không gian thoáng đãng. Tuy nhiên nó cũng đòi hỏi một sự khéo léo không nhỏ để ngăn tách không gian nhằm đảm bảo sự riêng tư . Sau đây cùng Nhôm Kính Việt ngắm nhìn một số cách thiết kế vách ngăn phòng khách và nhà bếp vừa đẹp vừa thoáng hết sức độc đáo bạn có thể tham khảo.
Thiết kế vách kính cường lực phòng khách và bếp là rất cần thiết để những người có nhu cầu thu gọn không gian căn phòng nhà mình, do vậy với những ai đang tìm kiếm sự mới mẻ cho không gian căn phòng thì đây là cách tốt nhất mang đến người dùng một không gian căn phòng tươi mới và gọn gàng hơn rất nhiều.
Với diện tích sử dụng giới hạn, phòng khách và phòng bếp trong các căn hộ chung cư thường được bố trí trong cùng một không gian. Để mang lại sự tinh tế trong thiết kế cũng như trang trí, kiến trúc sư đã khéo léo lựa chọn vách kính cường lực để tách biệt giữa hai khu vục trên mà vẫn không làm bố cục của căn phòng.
Vách ngăn kính phòng khách là sự lựa chọn hoàn hảo cho những hộ gia đình, hay những căn hộ hiện đại, nhằm khắc phục những nơi hạn chế về diện tích. Với chất liệu chủ yếu là kính cường lực giúp cho không gian thêm phần thoáng đãng, giúp ăn gian được không gian nhỏ hẹp.
Vách ngăn kính phòng khách là sự lựa chọn hoàn hảo cho những hộ gia đình, hay những căn hộ hiện đại, nhằm khắc phục những nơi hạn chế về diện tích. Với chất liệu chủ yếu là kính cường lực giúp cho không gian thêm phần thoáng đãng, giúp ăn gian được không gian nhỏ hẹp.
Vách ngăn kính là sản phẩm nội thất được sử dụng rộng rãi bởi nhiều tính năng ưu việt mà tường gạch và tường xi măng không có như. Dễ dàng lắp đặt thêm các hệ thống ngầm như điện, nước, tăng cường khả năng chống ồn, chống cháy , cách nhiệt. Đặc biệt với trọng lượng nhẹ, tiết kiệm thời gian thi công đã góp phần làm giảm đáng kể tổng chi phí đầu tư cho các dự án cao tầng. Vách nhôm kính chủ yếu sử dụng khung nhôm khác nhau màu trắng bóng, hay màu trắng sơn tĩnh điện, vân gỗ… và kính thường hay kính cường lực có độ dày từ 5 ly đến 19 ly, kính mờ hay các loại kính màu tùy theo nhu cầu sử dụng của khách hàng.
Có nhiều mẫu vách ngăn phòng ngủ phù thuộc với từng không gian của ngôi nhà. Nếu bạn chưa biết thiết kế như thế nào thì hãy xem ngay bài viết này. Cuakinhgroup.com sẽ giới thiệu đến bạn những mẫu vách ngăn độc đáo và ấn tượng nhất hiện nay. Với những mẫu này bạn có thể tự do, thoả sức sáng tạo vách ngăn phù hợp nhất với căn phòng của mình
Ngăn cách phòng ngủ với các không gian trong căn hộ của bạn bằng vách ngăn phòng ngủ nhôm kính tạo nên một không gian riêng tư, thoải mái, đơn giản mà vẫn tinh tế và tiết kiệm nhiều chi phí.
Vách ngăn phòng ngủ bằng nhôm kính tạo nét sang trọng mà nhẹ nhàng, năng động, tiết kiệm chi phí, tạo không gian riêng cho phòng ngủ.Vách ngăn nhôm kính làm bằng khung nhôm định hình, được cấu tạo gồm phần khung nhôm và kính. Vách ngăn nhôm kính dùng các modum riêng biệt để phân chia lắp đặt theo từng kích thước khu vực
Vách ngăn phòng ngủ bằng nhôm cũng như các sản phẩm vách ngăn thông thường, có tác dụng phân chia không gian giữa các khu vực khác với phòng ngủ. Tuy nhiên, chất liệu của vách ngăn này được làm từ nhôm cao cấp. Trong một số trường hợp, sẽ có sự kết hợp với kính cường lực, người ta thường gọi chung là vách ngăn phòng ngủ bằng nhôm kính.
Trong thời buổi hiện đại, không gian sống ngày càng bị thu hẹp, người ta sử dụng vách ngăn để phân chia phòng đồng thời làm vật trang trí. Tuy nhiên, nhiều người băn khoăn có nên chọn vách ngăn nhôm kính cho không gian phòng ngủ hay không.
Ở các phòng khách trong gia đình hay trong công ty để tạo không gian sang trọng, hiện đại ngày nay nhiều người sử dụng nội thất vách kính văn phòng đặc biệt là vách ngăn nhôm kính phòng khách. Vậy tại sao vách ngăn nhôm kính phòng khách lại được lựa chọn như vậy? Để biết được vấn đề này mời các bạn theo dõi bài viết dưới đây của cuakinhgroup.com nhé!








































.png)